<%@ Page Language="C#" %> ARCHITEKTURBÜRO
Planung 2

ARCHITEKTURBÜRO

AXEL SCHMITT

Beratung · Planung · Bauleitung
Hochbau · Architektur · Innenarchitektur
EU-SIGE-Koordinator · Wertermittlungen · Denkmalpflege

 

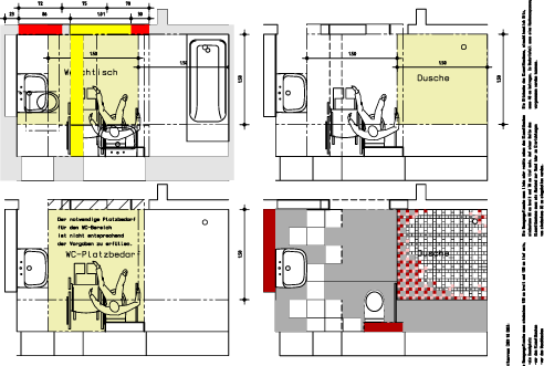
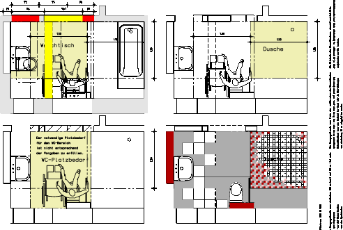
Barrierefreies Bauen, hier WC

Home

Gebäude

Bauen im Bestand

Denkmalpflege

Fundstücke

Vorher / Nachher

Innenausbau

Planungen

Impressum

Kontakt

Zertifikate

News

 

Kalender 2009


Bitte klicken Sie
die einzelnen

Bilder an,
um zu den
vergrößerten Ansichten
zu gelangen.

 



© 02/2009

Alle Rechte vorbehalten Architekturbüro

Axel Schmitt