<%@ Page Language="C#" %> ARCHITEKTURBÜRO
Planung 15

ARCHITEKTURBÜRO

AXEL SCHMITT

Beratung · Planung · Bauleitung
Hochbau · Architektur · Innenarchitektur
EU-SIGE-Koordinator · Wertermittlungen · Denkmalpflege

 

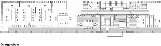
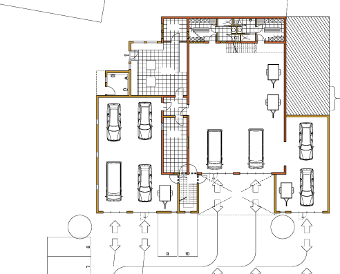
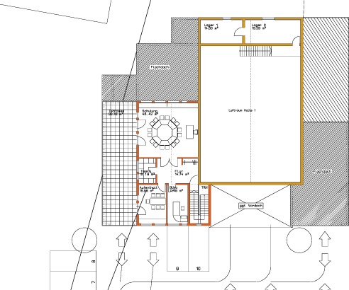
Planung einer Niederlassung des Maltheser Hilfsdienstes

Home

Gebäude

Bauen im Bestand

Denkmalpflege

Fundstücke

Vorher / Nachher

Innenausbau

Planungen

Impressum

Kontakt

Zertifikate

News

 

Kalender 2009

 

 


Bitte klicken Sie
die einzelnen

Bilder an,
um zu den
vergrößerten Ansichten
zu gelangen.

 


© 02/2009

Alle Rechte vorbehalten Architekturbüro

Axel Schmitt